关于安徽建筑大学新南园餐厅(科技孵化中心)学生用房配套设施方案征集的通知

发布者:唐黎发布时间:2025-05-08浏览次数:543

各家具生产、经营单位:

我校紫云路校区新南园餐厅(科技孵化中心)学生用房配套设施将于近期招标采购,为提升配套设施技术参数合理性和规范性,现面向社会公开征集设计方案,欢迎大家积极参与。

一、设计方案要求

1.基本要求

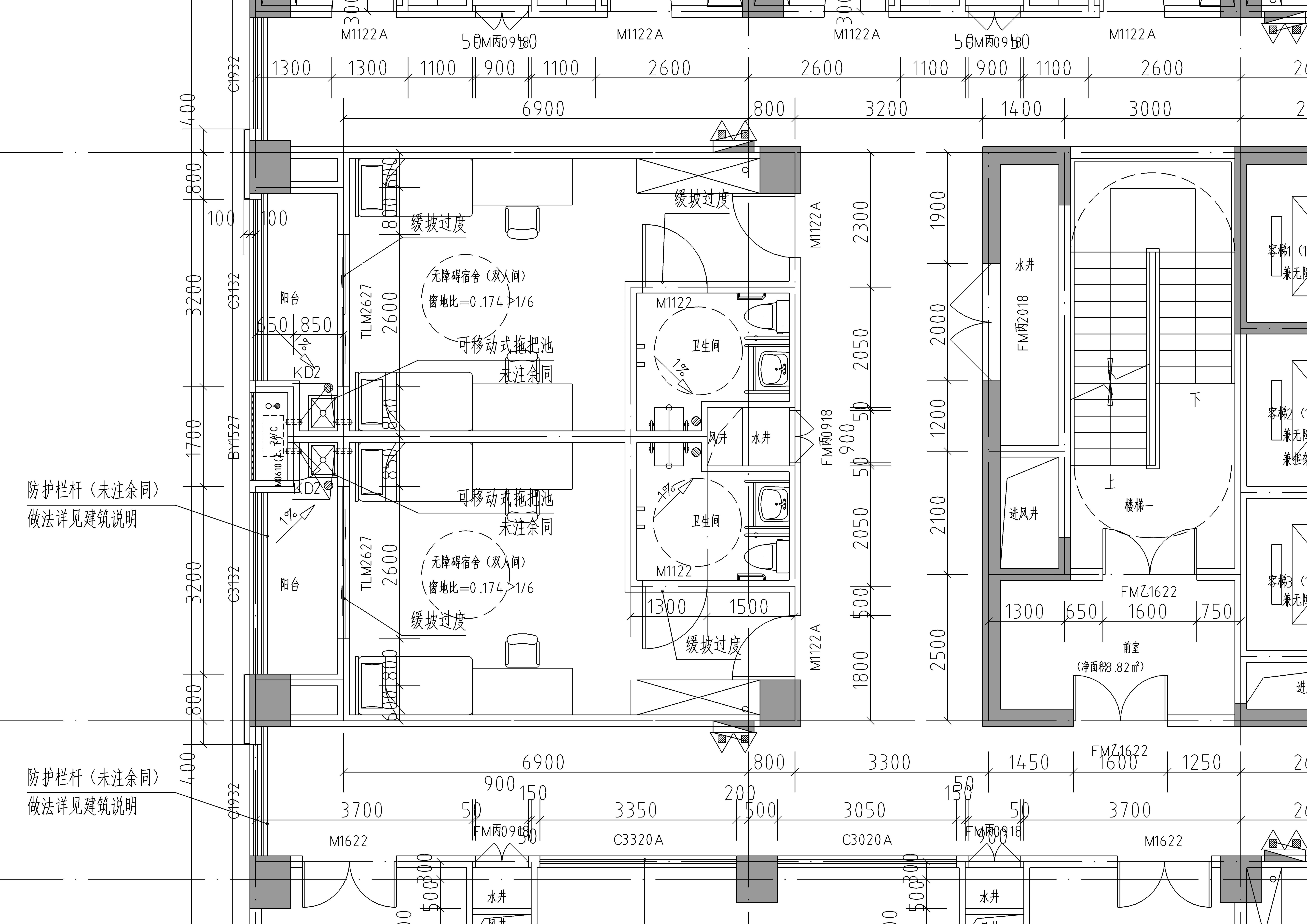
1)根据房间图纸(见附件),设计学生入住所需的所有家具,其中2人间22间共44套,4人间251间共1004套。

2)学生宿舍室内设计方案:

4人间,要求放置4人床位、4人学习桌椅、4人储物柜等基本家具,床型为上床下桌下柜样式,根据房间设计,另在入户门至房间内区域配置一组4人储物柜;

2人间,要求放置2张单人床位,2人学习桌椅、储物柜等,另在入户门至房间内区域配置一组储物柜。

4)室内家具布置要求:利用有限空间合理设计室内家具,充分考虑学生行李箱、衣物、鞋子等生活物品及电脑、课本等学习用品的合理放置。床铺符合当代大学生人体尺寸要求,爬梯、护栏高度符合国家强制性要求,稳固、耐用;学习桌椅可放置电脑、课本等学习用具,符合学生日常学习使用;储物柜可放置学生衣物、杂物等日常用品,使用功能安全、便利,所有配件材料环保、耐用,质量可靠。

二、文件要求

1.方案内容必须提供完整准确的家具配置方案、效果图及床位实物图;包括设计方案、家具详细参数、数量、单价及总价等内容。

2.效果图要求:按照所住人数摆放相应的家具,图内清晰可见床铺、储物柜、学习桌、学习椅等家具及物品放置的效果,效果图需从正面、侧面等不同角度显示出不同的效果图片,标注家具使用功能、使用效果,同时需对各关键配件进行配图,做出相应文字说明。

3.实物图要求:4人间上床下桌布局提供正面、侧面至少两张图片;2人间单人床位、桌椅摆放提供正面、侧面至少两张图片,并做相应文字说明。

4.本次征集的设计方案仅作为我校相关项目建设方案撰写的参考依据,不做他用,我校不收取、不支付任何费用。

5.设计方案仅需提供电子版资料,方案内容和图片不得出现单位名称,不得做任何记号,否则将按作废处理

6.方案评审由征集人组织校内外有关专家、部门进行评审。

7.所有征集的方案将无偿提供给我校使用。方案递交后所有权归属安徽建筑大学,设计方案涉及的知识产权我校无偿使用,如遇产权纠纷,责任由应征人自负,最终上报采购方案与此次征集无关。

8.本次设计方案征集活动最终解释权为安徽建筑大学所有。凡参加本次设计方案征集的单位均被视为同意并接受本声明,无须书面或其他方式确认。

三、现场勘查

2025514日,下午15点为统一现场勘查及咨询时间。

勘查地址:安徽建筑大学紫云路校区。其他时间不再现场勘验。如对设计方案涉及的内容有疑问咨询联系人汪老师。

四、家具设计方案递交时间

1.设计方案提交截止时间为20255199点,电子版材料发送到邮箱hqjt@ahjzu.edu.cn,逾期不予接收。

2.咨询联系人:汪老师;联系电话:19956020386

附件:1.楼层图纸.jpg

    2.四人间图纸.jpg

    3.二人间图纸.jpg



安徽建筑大学后勤管理处

202558



Baidu
map